Kastamonu Prefabrik Logo
  • ANASAYFA
  • HAKKIMIZDA
  • S.S.S
  • HiZMETLERiMiZ
    • Tek Katlı Prefabrik Ev
    • İki Katlı Prefabrik Ev
    • Prefabrik
    • Prefabrik Ev
    • Prefabrik Konut
    • Hazır Ev
    • Prefabrik Villa
    • Çelik Ev
    • Konteyner
    • Metropol Konteyner
    • Güvenlik Kabini
    • WC Duş Konteyner
    • Demonte Konteyner
    • Kabin
    • Prefabrik Fabrika
    • Şantiye ve Ticari Yapılar
  • Prefabrik ev fiyatları
    • Tek katlı prefabrik ev fiyatları
    • İki katlı prefabrik ev fiyatları
    • Prefabrik konut fiyatları
    • Hazır ev fiyatları
  • BİZE ULAŞIN

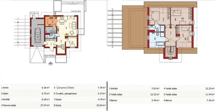
147 metrekare prefabrik villa
147 metrekare prefabrik villa projesi

 

 

 

  • Çelik evlerin teknik detayları

Benzeşik, izotropik, dayanıklı ve insan insiyatifi minimum olan yapım sistemlerinden dir. Hatasız ve hasarsız üretime olanak verir. Yılın 365 günü, her hava koşulunda, sürdürülebilir bir inşaat yönetimine olanak tanır, fabrikada ve sahada kısa süreli ve kuru imalat sağlar.
Sistem elemanları galvanizleme yöntemi ile korozyona karşı ömür boyu koruma sağlar. Tasarımda geniş malzeme seçim olanağı, esneklik ve estetik imkanı sunar. İç mekanda kullanıcılara kolonsuz, kirişsiz v.b. Net mekan kullanımı olanağı sunar.
Hem de geleneksel sistemlere göre duvar kalınlıkları belli standartlarda olduğundan, dış cephe kaplamasında tasarruf, iç mekanda da %7-10 oranında alan kazanımı sağlama gibi özellikleri vardır. Diğer yapım sistemlerine nazaran daha hafiftir. Bu da yüksek zelzele performansına haiz olması avantajını getirir.
Hızlı ve rahat montaj olanağı ile yapım süresini kısaltır. Böylece sahada meydana gelecek indirerek giderlerin azalmasına olanak verir. Azca işçi ve kısa sürede iş bitirme avantajı sağlar. Geçici prefabrik değil, uzun ömürlü, konfor standardı yüksek, kalıcı yapılardır.
Yapı tamamlandığında elde edilmiş iç ve dış görünümün gelenekselden asla bir farkı yoktur. Sistem deneyimli mühendis ve mimarlar kontrolünde hayata geçirilirken, fabrika ve sahada eğitimli işçiler tarafından imalatlar gerçekleştirilir.
Tasarım ve üretimde ulusal ve uluslar arası tüm şartnamelere uygundur. Çelik yapı sisteminde elektrik ve mekanik tesisatlar tasarım esnasında düşünülür. Üretimden önce tesisatın geçeceği duvar dikmeleri ve döşeme kirişlerinde delik bölgeleri belirlenir ve üretim esnasında açılır. Geleneksel sistemlerdeki benzer biçimde gerektiğinde kırma, dökme ve tamirat işlemlerine gerek duyulmaz. Bu da yapım esnasında müteahhidi, kullanım esnasında kullanıcıyı ek maliyetlerden korur. Kullanıcıya yüksek yapı fiziği olanakları sunar. ( Alçı levhalar ve çimento esaslı kaplamalar sayesinde gerekli yangından korunma koşulları sağlanır. Isı yalıtımı her bölgenin iklim koşullarına göre tasarlanır ve uygun araç-gereç seçimleriyle uygulanır. Bu sayede, ısı yalıtım performansı da yüksektir. Yapıyı oluşturan bina elemanları, gerekli ses yalıtımını da sağlar.)
Çeliğin %90 ve üzeri oranda geri dönüştürülebilir bir malzeme olduğu Amerikan Demir Çelik Birliği tarafından raporlanmış ve Uluslar arası C safha Yönetim Sistemleri tarafınca sertifikalandırılmış tır. Amerikan Akciğer Derneği’ne göre, kullanılan malzemeler sayesinde, sağlıklı iç hava kalitesine haiz mekanların elde edilmiş olduğu yapı sistemidir. Her bir proje için özel statik hesaplar yapılır ve bunun sonucu elde edilmiş verilerle geçilebilecek maksimum açıklıklar ve kat yükseklikleri belirlenir. Sistemde kullanılan malzemelerin ulusal ve uluslararası koşullarda temininde bir problem yaşanmamaktadır. ABD’da 50 yıldır yaygın olarak kullanılan, Avrupa Birliği ülkeleri ile Körfez ülkelerinde, özellikle de yeni yapılanmaya süregelen Dubai ve Abu Dhabi benzer biçimde emirliklerde son yıllarda yoğun talep gören, 1999 depreminden sonrasında Türkiye ile tanışan sisteme ilgi günden güne artmaktadır.

Teknik Özellikler
Homojen, izotropik, dayanıklı ve insan insiyatifi en az olan yapım sistemlerindendir. Hatasız ve hasarsız üretime olanak verir. Yılın 365 günü, her hava koşulunda, sürdürülebilir bir inşaat yönetimine olanak tanır, fabrikada ve sahada kısa süreli ve kuru imalat sağlar.
Sistem elemanları galvanizleme yöntemi ile korozyona karşı ömür boyu koruma sağlar. Tasarımda geniş malzeme seçim olanağı, esneklik ve estetik imkanı sunar. İç mekanda kullanıcılara kolonsuz, kirişsiz v.b. net mekan kullanımı imkanı sunar.
Aynı zamanda geleneksel sistemlere göre duvar kalınlıkları belli standartlarda olduğu için, dış cephe kaplamasında tasarruf, iç mekanda da %7-10 oranında alan kazanımı sağlama gibi özellikleri vardır. Diğer yapım sistemlerine göre daha hafiftir. Bu da yüksek deprem performansına sahip olması avantajını getirir.
Hızlı ve kolay montaj olanağı ile yapım süresini kısaltır. Böylece sahada meydana gelecek indirek giderlerin azalmasına olanak verir. Az işçi ve kısa sürede iş bitirme avantajı sağlar. Geçici prefabrik değil, uzun ömürlü, konfor standardı yüksek, kalıcı yapılardır.
Yapı tamamlandığında elde edilen iç ve dış görünümün gelenekselden hiçbir farkı yoktur. Sistem deneyimli mühendis ve mimarlar kontrolünde hayata geçirilirken, fabrika ve sahada eğitimli işçiler tarafından imalatlar gerçekleştirilir.
Tasarım ve üretimde ulusal ve uluslar arası tüm şartnamelere uygundur. Çelik yapı sisteminde elektrik ve mekanik tesisatlar tasarım esnasında düşünülür. Üretimden önce tesisatın geçeceği duvar dikmeleri ve döşeme kirişlerinde delik yerleri belirlenir ve üretim esnasında açılır. Geleneksel sistemlerdeki gibi gerektiğinde kırma, dökme ve tamirat işlemlerine gerek duyulmaz. Bu da yapım esnasında müteahhidi, kullanım esnasında kullanıcıyı ek maliyetlerden korur. Kullanıcıya yüksek yapı fiziği olanakları sunar. ( Alçı levhalar ve çimento esaslı kaplamalar sayesinde gerekli yangından korunma koşulları sağlanır. Isı yalıtımı her bölgenin iklim koşullarına göre tasarlanır ve uygun malzeme seçimleriyle uygulanır. Bu sayede, ısı yalıtım performansı da yüksektir. Yapıyı oluşturan bina elemanları, gerekli ses yalıtımını da sağlar.)
Çeliğin %90 ve üzeri oranda geri dönüştürülebilir bir malzeme olduğu Amerikan Demir Çelik Birliği tarafından raporlanmış ve Uluslar arası Çevre Yönetim Sistemleri tarafından sertifikalandırılmıştır. Amerikan Akciğer Derneği’ne göre, kullanılan malzemeler sayesinde, sağlıklı iç hava kalitesine sahip mekanların elde edildiği yapı sistemidir. Her bir proje için özel statik hesaplar yapılır ve bunun sonucu elde edilen verilerle geçilebilecek maksimum açıklıklar ve kat yükseklikleri belirlenir. Sistemde kullanılan malzemelerin ulusal ve uluslarası koşullarda temininde bir sorun yaşanmamaktadır. Amerika’da 50 yıldır yaygın olarak kullanılan, Avrupa Birliği ülkeleri ile Körfez ülkelerinde, özellikle de yeni yapılanmaya başlayan Dubai ve Abu Dhabi gibi emirliklerde son yıllarda yoğun talep gören, 1999 depreminden sonra Türkiye ile tanışan sisteme ilgi günden güne artmaktadır.


Tasarım Standartları
Malzeme Standartları
(ASD & LRFD) (Amerikan Demir-Çelik Enstitüsü Standardı 2001): Soğuk şekillendirilmiş Çelik Yapı Elemanları Tasarımı için Kuzey Amerika Şartnamesi
Amerikan Demir-Çelik Enstitüsü Manuel: Soğuk Şekillendirilmiş Çelik Tasarımı
ASCE 7-93 Amerikan İnşaat Mühendisleri Topluluğu Binalar ve diğer Yapılar için Asgari Tasarım Yükleri
Amerikan Test ve Materyal Topluluğu E119-07a, Standart Bina Yapımı ve Materyallerin Yangın Testi Metotları
BS 5990-5 (1998) bina yapımında çelik işlerinin iskelette kullanımı. Soğuk şekillendirilmiş ince ölçü parçalarının uygulama kuralları.
BS 5990-6 (1995) Bina yapımında çelik işlerinin iskelette kullanımı. Hafif ölçüm profilli sac tasarımı uygulama kuralı.
BS 5990-9 (2003) Bina yapımında çelik işlerinin iskelette kullanımı. Yangına karşı dirençli tasarımı uygulama kuralları.
BS 5990-9 (1994) Bina yapımında çelik işlerinin iskelette kullanımı. Baskılanmış kaplama tasarımı uygulama kuralları.
TS EN 1993-1-3 (Eurocode 3- Çelik yapıların tasarımı Birinci Kısım 3: Soğuk şekillendirilmiş elemanlar ve sac kaplama için Genel Kurallar - Yardımcı kurallar.
TS 498 Yapısal Çelik Boyutları ve Yükü
TS 648 Yapısal Çelik Hesabı ve Yapı Kuralları
TS 11372 Soğuk Şekillendrilmiş İnce Hacim Hesap kuralları
Türk Sismik Kuralı (DBYBHY) (2007) ASTM A123/A123M-02 Çinko (Sıcak-Batırılmış Galvanize) Kaplama ya da Demir ve Çelik Ürünleri için Standart Şartname
ASTM A653/A653M-07 Çelik Sac, Çinko Kaplama (galvanize) veya Çelik Demir alaşımı (galvanize) Kaplama için Standart Şartname.
ASTM A653/A653M-1996 Sıcak-batırma süreci için Çelik-Demir (galvanize) ya da Çelik sac kaplama (galvanize)Standart Şartnamesi.
ASTM B201 Kadmiyum ve çelik yüzeylerin kromat kaplamaları testi için standart uygulama.
ASTM B633 Demir ve çelik üzerinin çinko kaplanması için standart Şartname.
BS EN 10268 (2006) Soğuk şekillendirme için verim gücü yüksek soğuk açılmış yaprak ürünler) Teknik teslim şartları.
BS 5990-07 (1992) Bina yapımında çelik işçiliğinin iskelette kullanımı. Materyal ve işçilik şartnamesi: soğuk şekillendirilmiş kesitler.
TS 914 EN 1461 (2001) fabrikasyon demir ve çelik üzerine sıcak batırılmış galvanize kaplamalar için maddeler-şartname ve test yöntemleri.
TS 1460 (2001) Metal kaplamalar- demir materyaller üzerine Sıcak Batırılmış Galvanize Kaplamalar- bütün yığın bölgesinin gravimetrik tespiti.
TS 3813 EN 10130 (2003) soğuk şekillendirme için soğuk açılmış düşük karbonlu çelik kat ürünleri. Teknik teslim koşulları (BS EN 10130—2006).
TS EN 10268 (2005) Soğuk şekillendirme için verim gücü yüksek soğuk açılmış çelik kat ürünleri
Size Large, Medium, Small, X-Large
Colour Orange, Yellow
  • Adana Prefabrik Ev Fiyatları
  • Adıyaman Prefabrik Ev Fiyatları
  • Afyonkarahisar Prefabrik Ev Fiyatları
  • Ağrı Prefabrik Ev Fiyatları
  • Aksaray Prefabrik Ev Fiyatları
  • Amasya Prefabrik Ev Fiyatları
  • Antalya Prefabrik Ev Fiyatları
  • Ardahan Prefabrik Ev Fiyatları
  • Artvin Prefabrik Ev Fiyatları
  • Aydın Prefabrik Ev Fiyatları
  • Balıkesir Prefabrik Ev Fiyatları
  • Bartın Prefabrik Ev Fiyatları
  • Batman Prefabrik Ev Fiyatları
  • Bayburt Prefabrik Ev Fiyatları
  • Bilecik Prefabrik Ev Fiyatları
  • Bingöl Prefabrik Ev Fiyatları
  • Bitlis Prefabrik Ev Fiyatları
  • Bolu Prefabrik Ev Fiyatları
  • Burdur Prefabrik Ev Fiyatları
  • Bursa Prefabrik Ev Fiyatları
  • Çanakkale Prefabrik Ev Fiyatları
  • Çankırı Prefabrik Ev Fiyatları
  • Çorum Prefabrik Ev Fiyatları
  • Denizli Prefabrik Ev Fiyatları
  • Diyarbakır Prefabrik Ev Fiyatları
  • Düzce Prefabrik Ev Fiyatları
  • Edirne Prefabrik Ev Fiyatları
  • Elazığ Prefabrik Ev Fiyatları
  • Erzincan Prefabrik Ev Fiyatları
  • Erzurum Prefabrik Ev Fiyatları
  • Eskişehir Prefabrik Ev Fiyatları
  • Gaziantep Prefabrik Ev Fiyatları
  • Giresun Prefabrik Ev Fiyatları
  • Gümüşhane Prefabrik Ev Fiyatları
  • Hakkari Prefabrik Ev Fiyatları
  • Hatay Prefabrik Ev Fiyatları
  • Iğdır Prefabrik Ev Fiyatları
  • Isparta Prefabrik Ev Fiyatları
  • İstanbul Prefabrik Ev Fiyatları
  • İzmir Prefabrik Ev Fiyatları
  • K.maraş Prefabrik Ev Fiyatları
  • Karabük Prefabrik Ev Fiyatları
  • Karaman Prefabrik Ev Fiyatları
  • Kars Prefabrik Ev Fiyatları
  • Kastamonu Prefabrik Ev Fiyatları
  • Kayseri Prefabrik Ev Fiyatları
  • Kırıkkale Prefabrik Ev Fiyatları
  • Kırklareli Prefabrik Ev Fiyatları
  • Kırşehir Prefabrik Ev Fiyatları
  • Kilis Prefabrik Ev Fiyatları
  • Kocaeli Prefabrik Ev Fiyatları
  • Konya Prefabrik Ev Fiyatları
  • Kütahya Prefabrik Ev Fiyatları
  • Malatya Prefabrik Ev Fiyatları
  • Manisa Prefabrik Ev Fiyatları
  • Mardin Prefabrik Ev Fiyatları
  • Mersin Prefabrik Ev Fiyatları
  • Muğla Prefabrik Ev Fiyatları
  • Muş Prefabrik Ev Fiyatları
  • Nevşehir Prefabrik Ev Fiyatları
  • Niğde Prefabrik Ev Fiyatları
  • Ordu Prefabrik Ev Fiyatları
  • Osmaniye Prefabrik Ev Fiyatları
  • Rize Prefabrik Ev Fiyatları
  • Sakarya Prefabrik Ev Fiyatları
  • Samsun Prefabrik Ev Fiyatları
  • Siirt Prefabrik Ev Fiyatları
  • Sinop Prefabrik Ev Fiyatları
  • Sivas Prefabrik Ev Fiyatları
  • Şanlıurfa Prefabrik Ev Fiyatları
  • Şırnak Prefabrik Ev Fiyatları
  • Tekirdağ Prefabrik Ev Fiyatları
  • Tokat Prefabrik Ev Fiyatları
  • Trabzon Prefabrik Ev Fiyatları
  • Tunceli Prefabrik Ev Fiyatları
  • Uşak Prefabrik Ev Fiyatları
  • Van Prefabrik Ev Fiyatları
  • Yalova Prefabrik Ev Fiyatları
  • Yozgat Prefabrik Ev Fiyatları
  • Zonguldak Prefabrik Ev Fiyatları
WEB DESIGN Öztek Ajans matbaa