Kastamonu Prefabrik Logo
  • ANASAYFA
  • HAKKIMIZDA
  • S.S.S
  • HiZMETLERiMiZ
    • Tek Katlı Prefabrik Ev
    • İki Katlı Prefabrik Ev
    • Prefabrik
    • Prefabrik Ev
    • Prefabrik Konut
    • Hazır Ev
    • Prefabrik Villa
    • Çelik Ev
    • Konteyner
    • Metropol Konteyner
    • Güvenlik Kabini
    • WC Duş Konteyner
    • Demonte Konteyner
    • Kabin
    • Prefabrik Fabrika
    • Şantiye ve Ticari Yapılar
  • Prefabrik ev fiyatları
    • Tek katlı prefabrik ev fiyatları
    • İki katlı prefabrik ev fiyatları
    • Prefabrik konut fiyatları
    • Hazır ev fiyatları
  • BİZE ULAŞIN

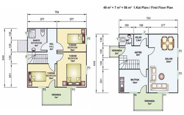
114 metrekare iki katlı prefabrik ev
114 metrekare iki katlı prefabrik ev projesi

 

 

var m2 : 114 var Veranda : 1 yok Isıtma : 0
var Wc : 2 var Oda : 2 var Banyo : 1
var Balkon : 1 var Kat Sayısı : 2 var Salon : 1
var Mutfak : 1 var Antre : 2 var Garanti : 2 Yıl
var Kiler : 1            
                 
İç Duvar Kalınlık : 10 Cm
Dış Duvar Kalınlık : 10 Cm
Tavan : Asma Tavan
Çatı Kaplaması : Galvaniz Paslanamaz Sac
Kapı : Amerikan Kapı
Pencere : Tüm Pencereler Çift Camlı
Dış Kapı : Çelik Kapı

 

  • Prefabrikler Hakkında Bilinmesi Gerekenler

Dış ve iç paneller : Özel bükümlü paslanmaz galvaniz sacdan ve 8X1250X2500 mm ebatlarında çift taraflı çimentolu yonga levhadan (betopan) imal edilir. Isı yalıtımı için paneller arasında 84 mm 16 dansite polistiren sert köpük kullanılır. Dış panel kalınlığı 10 cm, iç panel kalınlığı 6-8-10 cm ve panel yüksekliği 250 cm’dir. olu duvar paneli, pencereli duvar paneli, vasistaslı duvar paneli ve kapılı duvar panelinden imal edilen binaların en ağır parçası (1 adet 125x250 cm dış kapılı panel için ) 114 kg dır.

Panel Birleşimleri : Birleşim elemanları olan özel U ve H profilleri paslanmaz galvaniz sacdan bükülerek özel kenet sistemi ile birleştirilir. Kenarlarda radius oluştuğundan terleme sonucu paslanma olmaz.

Taşıyıcı Konstrüksiyonlar : Çatı makasları, kirişler ve kolonlar özel bükümlü paslanmaz galvaniz sacdan imal edilir. Bina boyunca her 125 cm de bir adet özel şekillendirilmiş çelik makas konulmakta olup makas üst yüzeyine özel şekillendirilmiş galvaniz sacdan aşıklar monte edilir. Montajda civata ve somun kullanıldığından yapı defalarca sökülüp takılabilir.Kaynaksız ve Cıvata Bağlantılı Sistem ile Marka üretim tesislerimizde üretilmektedir.

Arakat Konstrüksiyonlar : Ara kat konstrüksiyonu taşıyıcı kafes şeklinde özel bükümlü paslanmaz galvaniz sacdan imal edilir. Arakat zemini 16 mm betopan (çimento yonga levha) ile kaplanır. Alt kat asma tavan alçıpanı üzerine ısı-ses izolasyonu olarak 80 mm (14 kg/m3) kalınlığında cam yünü serilir.Arakat taşıma yükü 200 kg/m² dir.

Çatı Sistemi : %30 Eğimli Beşik Çatı ve Kırma Çatı Sistemleri kullanılmaktadır.

Çatı Kaplama ve Yalıtımı : Çatı kaplaması olarak metal aşıklar üzerine paslanmaz boyasız(naturel) galvaniz trapez sac uygulanır. Opsiyonel olarak kendi tesislerimizde üretilen Kiremit Desenli Boyalı Trapez Sac uygulamasının yanında , Shingle ,Metal Kiremit uygulamaları da yapılmaktadır.Makas alın bölgesi menfezli ve PVC lambri malzeme ile kaplanmaktadır. Bina etrafında 20 cm. genişliğinde paslanmaz galvaniz sacdan şekillendirilmiş menfezli saçaklar bulunmaktadır. Çatıya özel bükümlü paslanmaz galvaniz sacdan deprem diyagonelleri konulmaktadır. PVC esaslı kare yağmur dereleri ve aksesuarları monte edilmektedir. ( Kardan kaynaklanabilecek kırılmalar kapsam dışındadır.)

Tavan Kaplamaları : Tavan kaplaması olarak 12 mm kalınlığında alçıpan levha kullanılır. Tavan yalıtımı olarak asma tavan alçıpanı üzerine 80 mm kalınlığında 80 mm (14 kg/m3) cam yünü serilir.( İsteğe bağlı taşyünü ). Tavan birleşimi çatı makasları altına kaynatılan paslanmaz galvaniz sacdan bükülerek ezme yapılır. Sacın kenarlarında radius oluştuğundan terleme sonucu paslanma oluşmaz. Tavan omegaları estetik görünmesi için PVC kapak konulmaktadır. Alçıpan birleşim elemanları elektrostatik boyalı alüminyum malzemeden imal edilmiştir. Islak mekanların tavanlarına betopan levha uygulanmaktadır.

Dış Kapı : 90x200 cm ölçülerinde çelik kapı olarak imal edilir.Dış kapılarda silindirik özellikli TSE belgeli 1. sınıf kilitler kullanılmaktadır.

İç Kapılar : İç kapılar 80x200 ölçülerinde paslanmaz galvaniz sac kasalı, Kirli Beyaz renkte ahşap Amerikan kapı olarak imal edilir. Alüminyum ve PVC kapılar müşteri tercihli uygulamalarımızdır.İç kapılarda gömme özellikli TSE belgeli 1. sınıf kilitler kullanılmaktadır.

Pencere Doğramaları : 120X100 ,120x160 cm ve vasistaslar 60X40 cm ölçülerinde PVC esaslı malzemeden ve TSE belgeli 1. sınıf PVC olup 60 lık serisidir. (Opsiyonel olarak pencere ve vasistas çevrelerine betopan malzemeden pervaz monte edilmektedir.

Isıcam : Kullanılan camların tamamı çift cam olup ; 4+16+4 mm ısı camlı ve vasistaslar buzlu cam olarak imal edilir.

Not : Sipariş verilirken kapı ve pencere konumları ve ölçüleri mutlaka bildirilmelidir.

Merdivenler : Kutu profillerden imal edilen özel şekillendirilmiş çelik iskelet üzerine 16 mm kalınlığında betopan (çimento yonga levha) kaplanır. Merdiven korkuluğu kutu profillerden imal edilir. Merdiven metal aksamı çift kat astar ve çift kat yağlı boya ile boyanır.

Dış Cephe Boyası : Dış metal yüzeyleri çift kat astar, çift kat sentetik yağlı boya ile boyanır. Dış betopan panel yüzeyleri akrilik dış cephe boyası ile boyanır. Dış duvar birleşim detaylarına mastik çekilmektedir.Yapılarımızda TSE belgeli 1. sınıf boya ürünleri kullanılmaktadır.

İç Cephe Boyası : İç betopan panel yüzeyleri ve tavan alçıpan yüzeyleri plastik boya ile boyanır.Yapılarımızda TSE belgeli 1. sınıf boya ürünleri kullanılmaktadır.

Not : Galvaniz cold form makas,aşık,panel karkası kaynaksız teknoloji kullanıldığından astarsızdır.

Elektrik Tesisatı : Elektrik tesisatı TSE belgeli 1. sınıf kablo kullanılarak panel üzerinden döşenir. 32 amper TSE belgeli 1. sınıf sigorta kullanılmaktadır. Aydınlatma için TSE belgeli 1. sınıf simit armatür kullanılmaktadır. Anahtarlar ve prizler için TSE belgeli 1. sınıf ürünler kullanılmaktadır. Elektrik sayacı, topraklama çubuğu ve bina dışı bağlantıları alıcı tarafından yapılmaktadır.

Not : Tesisat sıvaaltı olacak şekilde yapılmaktadır.

Sıhhi Tesisat : Vitrifiye, lavabo ve duş armatürleri için TSE belgeli 1. sınıf ürünler kullanılmaktadır. Temiz su boruları için PPRC TSE belgeli 1. sınıf ürünler kullanılmaktadır. Atık su boruları için PVC TSE belgeli 1. sınıf ürünler kullanılmaktadır. Su sayacı ve bina dışı bağlantıları alıcı tarafından yapılmaktadır.

Temel ve Beton : Marka Prefabrik tarafından verilecek beton planına (temel boyutları) uygun zemin betonu dökülmelidir. Zemin betonu ve zemin etüdü alıcıya aittir. Bina zemin betonuna ankrajlarla ve çelik dübellerle tesbit edilmektedir. Demirli radye temel veya çelik hasırlı zemin hazırlanmalıdır. Bütün hafriyat işlemleri Müşteri sorumluluğundadır.

Size Large, Medium, Small, X-Large
Colour Orange, Yellow
  • Adana Prefabrik Ev Fiyatları
  • Adıyaman Prefabrik Ev Fiyatları
  • Afyonkarahisar Prefabrik Ev Fiyatları
  • Ağrı Prefabrik Ev Fiyatları
  • Aksaray Prefabrik Ev Fiyatları
  • Amasya Prefabrik Ev Fiyatları
  • Antalya Prefabrik Ev Fiyatları
  • Ardahan Prefabrik Ev Fiyatları
  • Artvin Prefabrik Ev Fiyatları
  • Aydın Prefabrik Ev Fiyatları
  • Balıkesir Prefabrik Ev Fiyatları
  • Bartın Prefabrik Ev Fiyatları
  • Batman Prefabrik Ev Fiyatları
  • Bayburt Prefabrik Ev Fiyatları
  • Bilecik Prefabrik Ev Fiyatları
  • Bingöl Prefabrik Ev Fiyatları
  • Bitlis Prefabrik Ev Fiyatları
  • Bolu Prefabrik Ev Fiyatları
  • Burdur Prefabrik Ev Fiyatları
  • Bursa Prefabrik Ev Fiyatları
  • Çanakkale Prefabrik Ev Fiyatları
  • Çankırı Prefabrik Ev Fiyatları
  • Çorum Prefabrik Ev Fiyatları
  • Denizli Prefabrik Ev Fiyatları
  • Diyarbakır Prefabrik Ev Fiyatları
  • Düzce Prefabrik Ev Fiyatları
  • Edirne Prefabrik Ev Fiyatları
  • Elazığ Prefabrik Ev Fiyatları
  • Erzincan Prefabrik Ev Fiyatları
  • Erzurum Prefabrik Ev Fiyatları
  • Eskişehir Prefabrik Ev Fiyatları
  • Gaziantep Prefabrik Ev Fiyatları
  • Giresun Prefabrik Ev Fiyatları
  • Gümüşhane Prefabrik Ev Fiyatları
  • Hakkari Prefabrik Ev Fiyatları
  • Hatay Prefabrik Ev Fiyatları
  • Iğdır Prefabrik Ev Fiyatları
  • Isparta Prefabrik Ev Fiyatları
  • İstanbul Prefabrik Ev Fiyatları
  • İzmir Prefabrik Ev Fiyatları
  • K.maraş Prefabrik Ev Fiyatları
  • Karabük Prefabrik Ev Fiyatları
  • Karaman Prefabrik Ev Fiyatları
  • Kars Prefabrik Ev Fiyatları
  • Kastamonu Prefabrik Ev Fiyatları
  • Kayseri Prefabrik Ev Fiyatları
  • Kırıkkale Prefabrik Ev Fiyatları
  • Kırklareli Prefabrik Ev Fiyatları
  • Kırşehir Prefabrik Ev Fiyatları
  • Kilis Prefabrik Ev Fiyatları
  • Kocaeli Prefabrik Ev Fiyatları
  • Konya Prefabrik Ev Fiyatları
  • Kütahya Prefabrik Ev Fiyatları
  • Malatya Prefabrik Ev Fiyatları
  • Manisa Prefabrik Ev Fiyatları
  • Mardin Prefabrik Ev Fiyatları
  • Mersin Prefabrik Ev Fiyatları
  • Muğla Prefabrik Ev Fiyatları
  • Muş Prefabrik Ev Fiyatları
  • Nevşehir Prefabrik Ev Fiyatları
  • Niğde Prefabrik Ev Fiyatları
  • Ordu Prefabrik Ev Fiyatları
  • Osmaniye Prefabrik Ev Fiyatları
  • Rize Prefabrik Ev Fiyatları
  • Sakarya Prefabrik Ev Fiyatları
  • Samsun Prefabrik Ev Fiyatları
  • Siirt Prefabrik Ev Fiyatları
  • Sinop Prefabrik Ev Fiyatları
  • Sivas Prefabrik Ev Fiyatları
  • Şanlıurfa Prefabrik Ev Fiyatları
  • Şırnak Prefabrik Ev Fiyatları
  • Tekirdağ Prefabrik Ev Fiyatları
  • Tokat Prefabrik Ev Fiyatları
  • Trabzon Prefabrik Ev Fiyatları
  • Tunceli Prefabrik Ev Fiyatları
  • Uşak Prefabrik Ev Fiyatları
  • Van Prefabrik Ev Fiyatları
  • Yalova Prefabrik Ev Fiyatları
  • Yozgat Prefabrik Ev Fiyatları
  • Zonguldak Prefabrik Ev Fiyatları
WEB DESIGN Öztek Ajans matbaa